Ruhige und abgeschiedene Büro- oder Praxisräume im Dachgeschoß einer Stadtvilla zu vermieten!

Objektbeschreibung
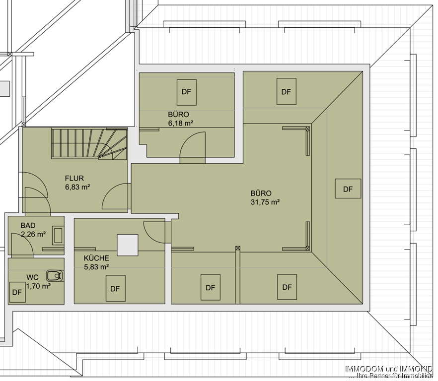
Die Büroeinheit wurde komplett neu renoviert und entspricht einem Erstbezug. Sie befindet sich im Dachgeschoß, hat dementsprechend viele Schrägen und Stützen (Siehe Fotos) und eignet sich für Berufe mit wenig Publikumsverkehr, wie Planungsbüros, Psychologen, Logopäden o.ä.. Eine Miniküche kann optional vom Vermieter gestellt werden. Das villenähnliche Gebäude wurde im Jahr 1925 errichtet und als eines der ersten nach der Wiedervereinigung Deutschlands aufwendig saniert (1991/1992). Im Jahr 2014 wurde die Fassade rekonstruktiert und Modernisierungsarbeiten im Haus ausgeführt, so dass es den modernen Wünschen an Gewerberäume gerecht wird. Auf dem großen Grundstück können bis 4 PKW-Stellplätze zusätzlich angemietet werden (Aufpreis 45,- EUR/mtl. pro SP). Interessiert? Dann rufen Sie gleich an: 0375.3909696!
Ausstattung
Deckenbeleuchtung, DSL, ISDN, EDV-Verkabelung, Vinyl- und Teppichboden, Holzfenster, Denkmalschutz, renoviert, optional bis 2 PKW-Stellplätze (Aufpreis 45,- EUR/mtl. pro Stk.), Gas-Zentralheizung
Lage
Das Geschäftshaus befindet sich in zentraler Innenstadtlage der viertgrößten Stadt Sachsens im Kreuzungsbereich der Straße Am Schwanenteich sowie der Humboldtstraße. Sie bietet Ihnen eine sehr gute Verkehrsanbindung und kurze Wege zur Grünen Lunge (Schwanenteich) Zwickaus für einen Spaziergang und ins Stadzentrum zum Einkaufen.
Sonstige Informationen
Einen 360 Grad Rundgang (Vorbesichtigung) bzw. virtuellen Rundgang können Se bereits genießen indem Sie einfach auf den Link klicken oder Sie kopieren sich den Link in die Adresszeile Ihres Browsers: https://app.immoviewer.com/portal/tour/1512079?accessKey=5c19
Datenblatt
Objektnummer: 10659/GE-DG
Nutzungsart: Gewerbe
Vermarktungsart: Miete
Objektart: Büro/Praxis
Objekttyp: Bürofläche
PLZ: 08056
Ort: Zwickau
Etage:
Gesamtfläche: 55,00 m2
Bürofläche: 55,00 m2
Anzahl Zimmer: 1,50
Anzahl Stellplätze: 1
Warmmiete mtl. 585 €
Kaution 900 €
Energieausweis
Es besteht keine Pflicht für einen Energieausweis.
Kontakt
Veit T. Bernkopf
Immobilienmakler
Inhaber Deutscher IMMODOM
Scheringerstraße 13/15,
08056 Zwickau ()0375 3909696
0160 93904092
bernkopf@immodom.de
0375 3909695
© Deutscher IMMODOM, Scheringerstraße 13/15, 08056 Zwickau
Quelle: https://immodom.de/Objektdetails

















![https://smartsite2.myonoffice.de/kunden/deutscherimmodom/29/immobilien.xhtml?id[obj0]=437 https://smartsite2.myonoffice.de/kunden/deutscherimmodom/29/immobilien.xhtml?id[obj0]=437](https://immodaten.immodom.eu/onoffice/skripte/getmediafile.php?file=009e31aa-c4b9-4d75-9ac4-743b5559bfc2.jpg&format=jpg)